Spring til indhold
Gratis fragt v/køb over 7500,- Kr. / 1000 kg. Direkte levering 1-3 hverdage på standard og 3-7 på specialvarer.
Gratis fragt v/køb over 7500,- Kr. / 1000 kg. Direkte levering 1-3 hverdage på standard og 3-7 på specialvarer.

Byggeprofiler

Byggeprofiler standardmål

Byggeprofiler af tyndplade "Blik" i standardmål er en væsentlig del af ethvert byggeri, hvor der ønskes god beskyttelse mod regnvand og vejrlig.
Profilerne er ofte produceret i aluminium, zink eller kobber, metaller der gør dem velegnede til at opfylde kravene til en kvalitetsbeskyttelse.
Zink og kobber profilerne er altid passende til enhver byggestil, mens aluminium profiler er lettere og mere "moderne", men dette til trods stadig kraftige og fleksible at arbejde med og giver et bredt udvalg af farvevariationer.
Der er mange forskellige typer af byggeprofiler, som fodblik, skotrender, kapsler, drypkanter/vandnæse, sålbænke, skadedyrssikring og andre typer, der tilpasses lige til dit nødvendige behov.
Byggeprofilerne dækker et stort antal udfordringer ved overgange i byggeriet, som f.eks. Tagsammenbygninger, hulrum, gennembrydninger, fuger, inddækninger mm. der kan forårsage store ødelæggelser hvis ikke disse er korrekt udført.

Derudover hjælper de med at holde træk, kold vind, frost, vand og fugt ude af bygningerne, ved at skabe en barriere mellem bygningen og det omgivende miljø.
Montering af byggeprofiler på standard mål i aluminium, zink og kobber er en relativ let og hurtig proces hvor profilet som oftest kun skal kortes af i længden på det sidste stykke.
Alle profilerne er produceret i standardmål, hvilket gør det let at finde en størrelse til de mest gængse behov i byggeriet.

Hvis huset ikke beskyttes med den korrekte byggeprofil til formålet, kan det ende med en ødelagt tagkonstruktion, murværk og boligen generelt på grund af den øgede eksponering for regn og vejrets luner.
Bygninger der er udsat for regn og vejrlig, kan ofte at danne skimmelsvamp, som er skadeligt for helbredet, hvis ikke inddækninger og sammenbygninger i tag og facade er korrekt konstrueret. Derfor er det vigtigt at anvende byggeprofiler af aluminium, zink eller kobber til inddækninger, som hjælper med at passe godt på dine bygninger og holde værdien af din ejendom mange år frem.

Finder du i denne kategori ikke den rigtige byggeprofil i standardmål, da kig under vores byggeprofiler på mål,

Alu og Zink profiler

Aluprofiler og zinkprofiler er et af de vigtigste materialer til brug ved ydervægge i bygninger.
De er et must i ethvert byggeprojekt, hvis man ønsker at beskytte sin bygning mod regn, sne, vind og vejrlig. Uden de rette alu og zinkprofiler vil bygningen hurtigt se slidt ud og måske endda begynde at rådne og blive ødelagt. Alu og zinkprofiler er lavet af slidstærke materialer, der kan modstå flere års eksponering for vejrets elementer.

Køb byggeprofiler på flere måder

Du kan bestille alu og zinkprofilerne på specialmål, som er tilpasset lige præcis til dit byggeri.
Alternativt kan de også fås i standardmål, som skal tilpasses på stedet ved montering af vindue eller dørramme.
Der findes forskellige typer af alu og zinkprofiler. De ser forskellige ud men har hver deres funktioner.
Nogle af disse profiler er designet med smalle skjulekanter, der hjælper med at skabe en lige yderside. Andre profiler har en drypnæse også kaldet vandnæse, som er med til at lede vandet væk fra bygningen.

Profilerne skaber sammen med andre materialer, som træ, fibercement, mursten, puds og beton, en god beskyttelse fra bygningens yderside mod vejret.

Vores udvalg af byggeprofiler findes både i profiler klar til montering og specialproducerede profiler - efter dine mål.

Vi har et stort udvalg er de helt gængse profiler som fodblik, skotrender, kapsler, drypkanter & vandnæse, løskanter og meget mere.

Stolpehat kobber 101x101 mm

Originalpris 134,00 kr - Originalpris 134,00 kr
Originalpris
134,00 kr
134,00 kr - 134,00 kr
Nuværende pris 134,00 kr

Stolpehat i kobber 101x101 mm – Beskyt dine stolper effektivt Denne stolpehat i kobber (101x101 mm) er en elegant og holdbar løsning til beskyttels...

Vis detaljer
Originalpris 134,00 kr - Originalpris 134,00 kr
Originalpris
134,00 kr
134,00 kr - 134,00 kr
Nuværende pris 134,00 kr

Stolpehat kobber 71x71 mm

Originalpris 53,00 kr - Originalpris 53,00 kr
Originalpris
53,00 kr
53,00 kr - 53,00 kr
Nuværende pris 53,00 kr

Stolpehat Bredde: 71 mm Længde: 71 mm Højde: 28 mm Tykkelse: 1 mm Materiale: Kobber Anvendes som afslutning af stolper, for at forhin...

Vis detaljer
Originalpris 53,00 kr - Originalpris 53,00 kr
Originalpris
53,00 kr
53,00 kr - 53,00 kr
Nuværende pris 53,00 kr

Stolpehat kobber 125x125 mm

Originalpris 163,00 kr - Originalpris 163,00 kr
Originalpris
163,00 kr
163,00 kr - 163,00 kr
Nuværende pris 163,00 kr

Stolpehat Bredde: 125 mm Længde: 125 mm Højde: 38 mm Tykkelse: 1 mm Materiale: Kobber Anvendes som afslutning af stolper, for at forh...

Vis detaljer
Originalpris 163,00 kr - Originalpris 163,00 kr
Originalpris
163,00 kr
163,00 kr - 163,00 kr
Nuværende pris 163,00 kr

Stolpehat kobber 91x91 mm

Originalpris 77,00 kr - Originalpris 77,00 kr
Originalpris
77,00 kr
77,00 kr - 77,00 kr
Nuværende pris 77,00 kr

Stolpehat Bredde: 91 mm Længde: 91 mm Højde: 30 mm Tykkelse: 1 mm Materiale: Kobber Anvendes som afslutning af stolper, for at forhin...

Vis detaljer
Originalpris 77,00 kr - Originalpris 77,00 kr
Originalpris
77,00 kr
77,00 kr - 77,00 kr
Nuværende pris 77,00 kr

Stolpehat kobber 76x76 mm

Originalpris 55,00 kr - Originalpris 55,00 kr
Originalpris
55,00 kr
55,00 kr - 55,00 kr
Nuværende pris 55,00 kr

Stolpehat Bredde: 76 mm Længde: 76 mm Højde: 28 mm Tykkelse: 1 mm Materiale: Kobber Anvendes som afslutning af stolper, for at forhin...

Vis detaljer
Originalpris 55,00 kr - Originalpris 55,00 kr
Originalpris
55,00 kr
55,00 kr - 55,00 kr
Nuværende pris 55,00 kr

Tagfod i kobber 100 mm flange uden asfalt – Fodblik 1 meter

Originalpris 229,71 kr - Originalpris 229,71 kr
Originalpris
229,71 kr
229,71 kr - 229,71 kr
Nuværende pris 229,71 kr

🟤 Fodblik i kobber anvendes ved tagets nederste kant og sikrer, at regnvand ledes korrekt væk fra tagkonstruktionen. Det er en vigtig detalje ved i...

Vis detaljer
Originalpris 229,71 kr - Originalpris 229,71 kr
Originalpris
229,71 kr
229,71 kr - 229,71 kr
Nuværende pris 229,71 kr

Vindskede i kobber 100 mm – flange uden asfalt – 1 meter

Originalpris 289,17 kr - Originalpris 289,17 kr
Originalpris
289,17 kr
289,17 kr - 289,17 kr
Nuværende pris 289,17 kr

🟤 Vindskede i kobber anvendes som afslutning på tagkanter – særligt ved tagpapstage – hvor den beskytter konstruktionen mod vind og nedbør. Samtidi...

Vis detaljer
Originalpris 289,17 kr - Originalpris 289,17 kr
Originalpris
289,17 kr
289,17 kr - 289,17 kr
Nuværende pris 289,17 kr

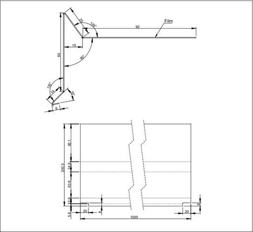
Sternkapsel lige 230 mm – kobber – 1 meter

Originalpris 435,08 kr - Originalpris 435,08 kr
Originalpris
435,08 kr
435,08 kr - 435,08 kr
Nuværende pris 435,08 kr

🟤 Sternkapsel lige i kobber anvendes til afdækning af stern, vindskede og murværk. Sikrer en flot og holdbar afslutning på tagets kanter. Profilen ...

Vis detaljer
Originalpris 435,08 kr - Originalpris 435,08 kr
Originalpris
435,08 kr
435,08 kr - 435,08 kr
Nuværende pris 435,08 kr

Sternkapsel muffe lille 230 mm – kobber – 225 mm

Originalpris 165,25 kr - Originalpris 165,25 kr
Originalpris
165,25 kr
165,25 kr - 165,25 kr
Nuværende pris 165,25 kr

🟤 Sternkapsel muffe lille i kobber anvendes som startstykke til 230 mm sternkapsler og sikrer en pæn og ensartet begyndelse på profilforløbet. Den ...

Vis detaljer
Originalpris 165,25 kr - Originalpris 165,25 kr
Originalpris
165,25 kr
165,25 kr - 165,25 kr
Nuværende pris 165,25 kr

Sternkapsel muffe stor 230 mm – kobber – 225 mm

Originalpris 165,77 kr - Originalpris 165,77 kr
Originalpris
165,77 kr
165,77 kr - 165,77 kr
Nuværende pris 165,77 kr

🟤 Sternkapsel stor muffe i kobber anvendes afslutning til sternkapsler og sikrer en flot og ensartet finish ved samlinger. Muffen fungerer som slut...

Vis detaljer
Originalpris 165,77 kr - Originalpris 165,77 kr
Originalpris
165,77 kr
165,77 kr - 165,77 kr
Nuværende pris 165,77 kr

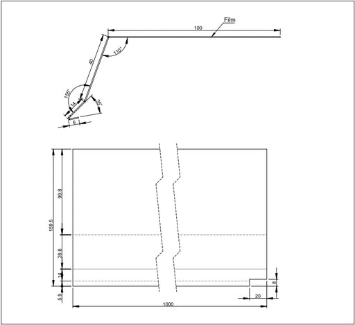
Sternkapsel lige 340 mm – kobber – 1 meter

Originalpris 591,42 kr - Originalpris 591,42 kr
Originalpris
591,42 kr
591,42 kr - 591,42 kr
Nuværende pris 591,42 kr

Sternkapsel i kobber anvendes til effektiv beskyttelse af sternbræt og andre vandudsatte flader, hvor der ønskes en både funktionel og æstetisk løs...

Vis detaljer
Originalpris 591,42 kr - Originalpris 591,42 kr
Originalpris
591,42 kr
591,42 kr - 591,42 kr
Nuværende pris 591,42 kr

Sternkapsel muffe lille 340 mm – kobber – 225 mm

Originalpris 214,79 kr - Originalpris 214,79 kr
Originalpris
214,79 kr
214,79 kr - 214,79 kr
Nuværende pris 214,79 kr

🟤 Sternkapsel muffe lille i kobber anvendes som startstykke til sternkapsler og sikrer en pæn og ensartet begyndelse på profilforløbet. Den lille m...

Vis detaljer
Originalpris 214,79 kr - Originalpris 214,79 kr
Originalpris
214,79 kr
214,79 kr - 214,79 kr
Nuværende pris 214,79 kr

Sternkapsel muffe stor 340 mm – kobber – 225 mm

Originalpris 216,25 kr - Originalpris 216,25 kr
Originalpris
216,25 kr
216,25 kr - 216,25 kr
Nuværende pris 216,25 kr

🟤 Sternkapsel muffe stor i kobber anvendes som afslutning på sternkapsler og sikrer en flot og professionel finish ved enden af profilforløbet. Den...

Vis detaljer
Originalpris 216,25 kr - Originalpris 216,25 kr
Originalpris
216,25 kr
216,25 kr - 216,25 kr
Nuværende pris 216,25 kr

Sammenlign produkter

{"one"=>"Vælg 2 eller 3 varer til sammenligning", "other"=>"{{ count }} af 3 varer valgt"}

Vælg første vare til sammenligning

Vælg anden vare til sammenligning

Vælg tredje vare til sammenligning

Sammenlign